FRACTAL
PROJETS
EMS Maurice Bugnon
Type de mandat: Concours ouvert
Lieu: Yvonand, VD, Suisse
Date: 2023
Programme: Établissement médico-social
Surface: 8’459 m2
Images: IMA.GE
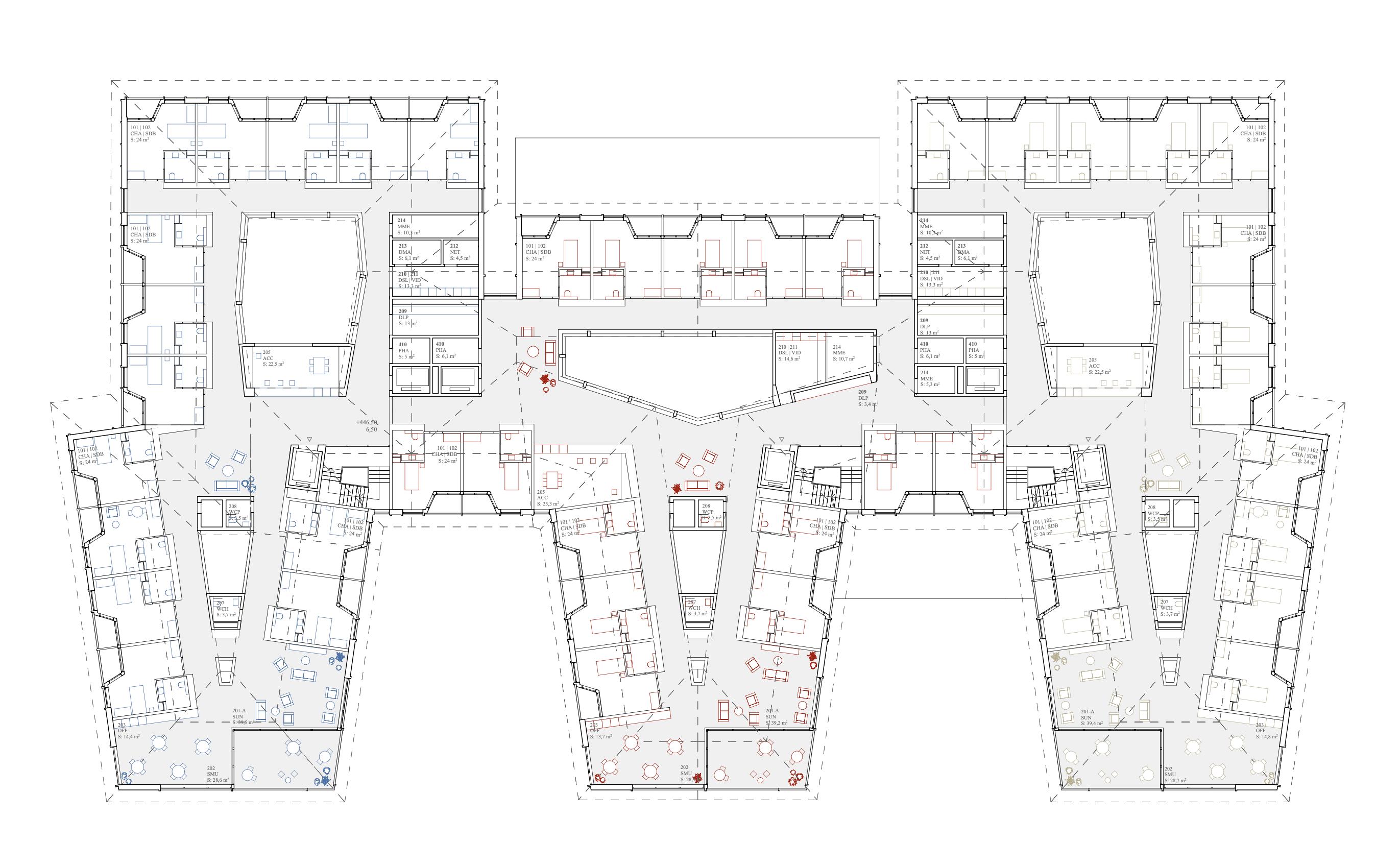
La réflexion s’est appuyée sur une « approche centrée sur la personne » afin que les habitants de l’EMS se sentent « chez eux », «comme à la maison». Le défi a été de réduire l’impact de cet équipement public pour lui donner un caractère plus domestique, grâce à un dispositif de décalage de volumes appliqué à toutes les échelles du projet, de l’intégration urbaine à la conception des chambres. Tangram a fragmenté la volumétrie du bâtiment pour créer l’illusion de trois entités distinctes, intégrées harmonieusement au village, distinction renforcée par trois tonalités de couleur. La forme s’adapte à la parcelle en préservant la plupart des arbres. Au rez-de-chaussée, un centre du village sert de pivot entre les activités collectives et semi-collectives des « maisonnées », situées aux étages.
Aux étages, le système de blocs éparpillés réduit l’effet de longueur des couloirs. Les patios et l’atrium apportent lumière et végétation au cœur du bâtiment. Les séquences de décalage s’organisent autour du bloc d’accueil, du patio et des espaces semi-privés, orientés au sud pour offrir une vue sur les champs. Le dispositif de décalage structure aussi les chambres, qui, à l’instar d’un appartement, se divisent en un espace de séjour et un espace de nuit, articulés par le bloc sanitaire et un balcon, différenciant ainsi les usages diurnes et nocturnes.